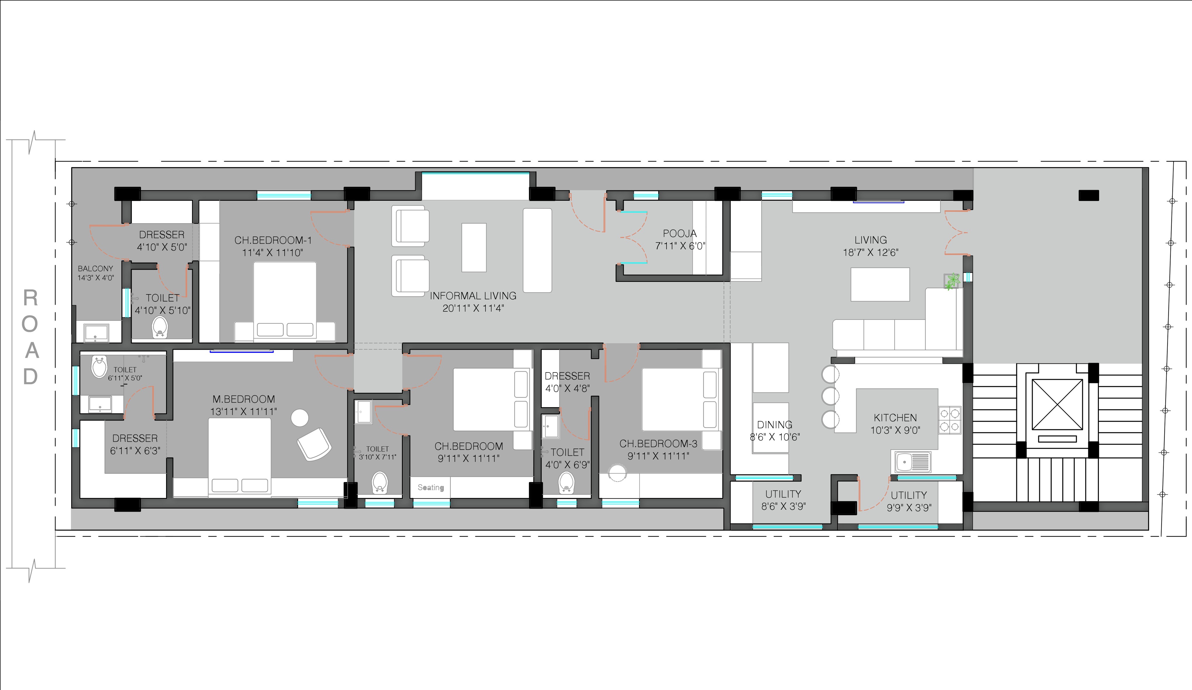
Chandan's Residence

Our design for Chandan's Residence blends contemporary architecture with timeless elegance.

Chandan's Residence 1 Chandan's Residence 3 Chandan's Residence 5 Chandan's Residence 6 Chandan's Residence 7 Chandan's Residence 8 Chandan's Residence 9 Chandan's Residence 10 Chandan's Residence 11 Chandan's Residence 12 Chandan's Residence 13 Chandan's Residence 14